• Works
  • about
  • people
  • press
  • contact
A( )VOID 一間建築
  • Works
  • about
  • people
  • press
  • contact

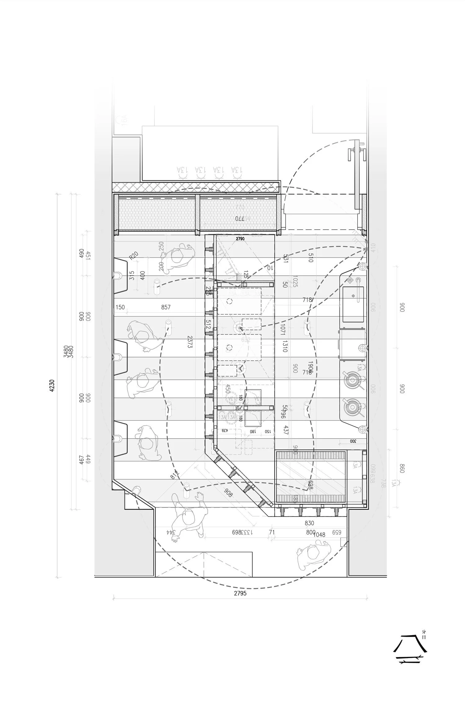
八分目 CHAKRA

Macau SAR, China

300 sqft

2020

The design statement introduces a local vegetarian restaurant and café located in the dynamic city of Macau, deftly intertwining a robust Japanese influence with an inviting café ambiance. By amalgamating the tenets of Japanese design with the intimate and comforting atmosphere of a café, our concept endeavors to forge a space that harmoniously accommodates guests seeking to relish vegetarian fare while indulging in the pleasures of a delectable cup of coffee.

chakra+plan.jpg
chakra axo.jpg
Adjustments.jpeg

© 2026 Studio A VOID all rights reserved.